Модульный дом
Модульный дом в Екатеринбурге
Современный модульный дом в Екатеринбурге вы можете посмотреть у нас. Мы поможем вам выбрать отделку, планировку, комплектацию, мебель и сделать правильный выбор.
Теперь подробнее по модульному зданию.
Модульный дом состоит из блоков. Он относится к блочно-модульным зданиям, быстровозводимым конструкциям. Исходя из нужных вам размеров производятся блоки на металлокаркасе, которые в дальнейшем будут монтироваться в одно цельное здание.
Модульный дом
– производится на заводе, так же на заводе получает внутреннюю и внешнюю отделку, возможно к дому заказать мебель. Так как мы производим большое кол-во зданий, вы получите мебель и прочие решения у нас с большой выгодой.

Модульный дом в Екатеринбурге

Модульный дом в Екатеринбурге
Конструкция модульного дома
Как уже ранее говорили, модульное здание основано на метеллокаркасе. Металлический швеллер – 100 мм., усилен уголком 25мм, стойки из проф. трубы. Дно и потолок металлические.
Отделка модульного дома
Изнутри доска 22 мм через одну, ДСП 16мм, плинтус ПВХ, линолеум – на выбор заказчика. внутренняя отделка: потолок и стены – на выбор заказчика (стандартная или базовая Вагонка, ПВХ)
Снаружи Модуль обшит оцинкованным профлистом С-8.
Оснащение модульного дома
Все на выбор и желание заказчика. Это:
- Электрика
- Варианты отделки
- Окна
- Сан узлы
- Раковины, душевые, бойлеры, унитазы
- Кровати, столы, стулья, шкафы и пр.
Модульный дом в Екатеринбурге: порядок выполнения заказа
Требуется модульный дом в Екатеринбурге? Наши специалисты, получив данные здания, скажут точные расценки и сроки строительства.
После согласования проекта и сметы мы Заключаем официальный договор. В нем предусмотрены все нюансы, чтобы в будущем не было неприятных неожиданностей.
Производство модульного здания соответствует с нормами согласно техническому заданию. У нас качественная внутренняя система контроля качества производства.
Доставка до места сборки и сборка здания.
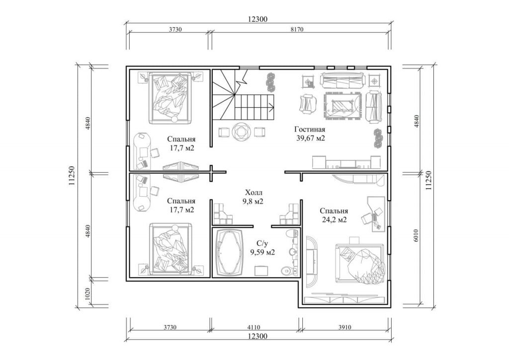
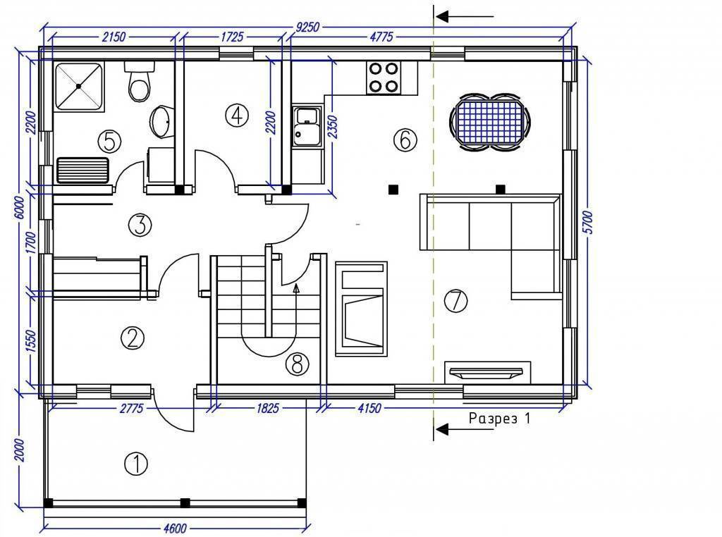
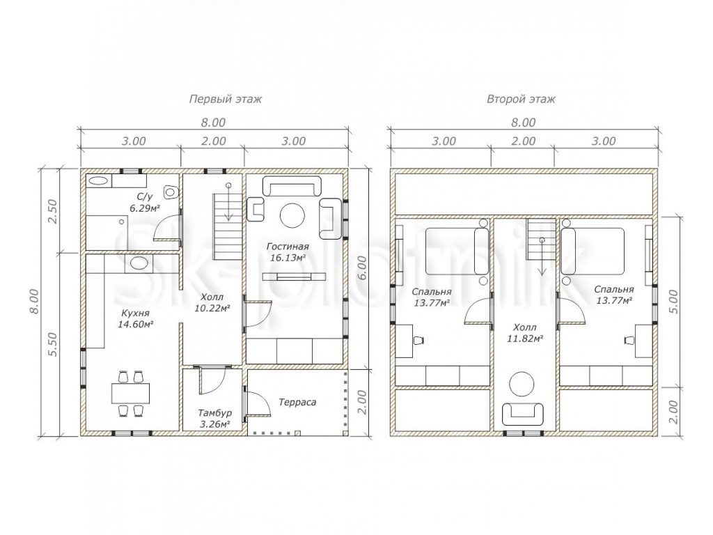
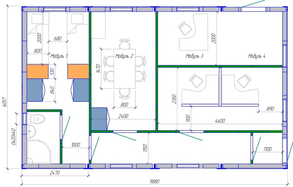
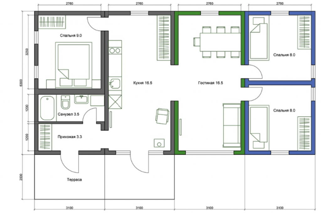
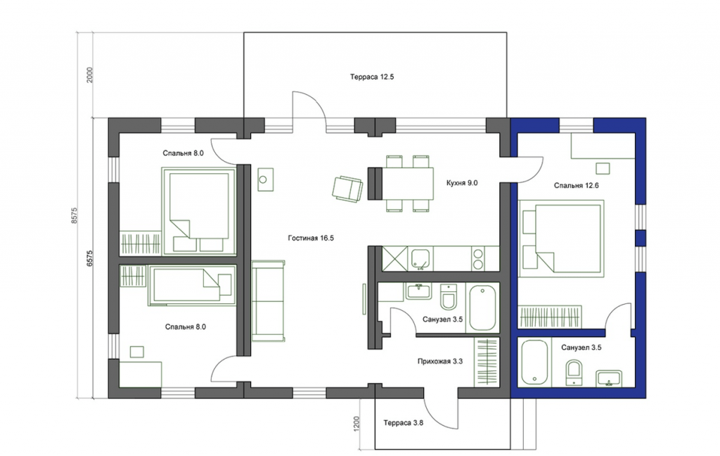
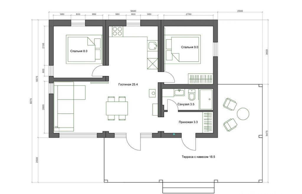
Проекты жилого модульного дома:
У нас есть примеры готовых жилых модульных домов
Это всего лишь примеры модульных домов которые мы произвели и можем сделать. Вы можете заказать проект под себя, со своей планировкой.
Использование жилых модульных домов
значительно экономит ваше время и деньги. В обоих случаях вы экономите на сроках строительства, т. к. срок производства с учетом загруженности составляет от 10 до 24 дней. Жилые модульные здания гораздо дешевле капитального строительства, скорость сборки занимает считанные дни. При этом модульные дома достаточно функциональны и ни чем не отличаются от обычного здания. Вы получаете готовое здание с отделкой, монтажом под ключ в течении месяца.
Вы можете оставить заявку и получить расчет стоимости модульного дома прямо сейчас!
Заказать модульный дом в Екатеринбурге
Заказывайте модульное здание в Екатеринбурге под ключ у нас. Мы обеспечим лучшие цены и качество, а так же скорость производства и возведения конструкции вас приятно удивит.
Производство модульных домов в Екатеринбурге: произведем быструю оценку стоимости











